Монтаж і демонтаж
Що потрібно зробити:
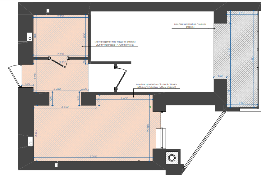
демонтажні роботи
• монтаж перегородок
• монтаж усіх сантехнічних виводів згідно
проекту
• монтаж перегородок
• монтаж усіх сантехнічних виводів згідно
проекту
Місцезнаходження об'єкту:
Спеціалізація:
Розпочати роботи:
до 01.02.2026

Бюджет
договірний
Схожі замовлення
#41987
Спеціалізація:
Розпочати роботи:
в будь-який час
Встановити димохід від залізного каміна у своєму будинку....
Спеціалізація:
Розпочати роботи:
в будь-який час
Потрібна невелика бригада з 2-3 осіб для встановлення парканів:
1) 94 м.п. стрічкового фундаменту під паркан
2) зварювання каркасів, фарбування
3) обшивка профнастилом
4) облицювання стовпчиків ...
#41759
Спеціалізація:
Розпочати роботи:
в будь-який час
Потрібно укласти понад 20 м газоблоку розміром 200*300*600. Ціна 1450 грн. Стіни глухі, лише один дверний проріз. Прошу відгукнутися тільки тих, хто самостійно виконує роботу. Підрядників прохання не ...
Спеціалізація:
Розпочати роботи:
в будь-який час
Потрібно прибрати будівлю. Фундамент: висота 74 см, ширина 30 см, у землі приблизно 40 см + цоколь 34 см. Довжина будівлі 7 м 75 см, ширина 5 м 70 см. Дах можна подивитися на фото. Стіни - 2 ряди цегл...
#41758
Спеціалізація:
Розпочати роботи:
в будь-який час
Потрібна вільна бригада для кладки газоблоку на 2 і 3 поверхах приватного будинку: 80 кубів на другому поверсі та 40 кубів на третьому.
Додатково:
- перемички над прорізами У-блок
- опорні колони...
Майстри в цій спеціалізації
100
0 відгуків
100
0 відгуків
100
0 відгуків
Що необхідно виконати?
Заповніть швидку заявку і очікуйте пропозицій від майстрів
Нові публікації в блогах
У сучасному світі економія ресурсів стає пріоритетом для кожного будинку та підприємства. Одним із найважливіших способів контролю витрат є встановлен...
Ремонт квартири — це один із найважливіших та найвідповідальніших етапів у житті власника житла. Чи йдеться про купівлю новобудови “під кл...
Інверторні генератори сьогодні використовуються майже всюди — у приватних будинках, магазинах, офісах, на будівельних майданчиках, у СТО та мобі...








